SEARCH USED HOUSES

中古物件を探す

K762 橋本市光陽台

価格1580万円

DATA

  • 所在地

    和歌山県橋本市光陽台1丁目4-9

  • 交通

    路線バス 光陽台東停 徒歩2分

  • 販売価格

    1580万円

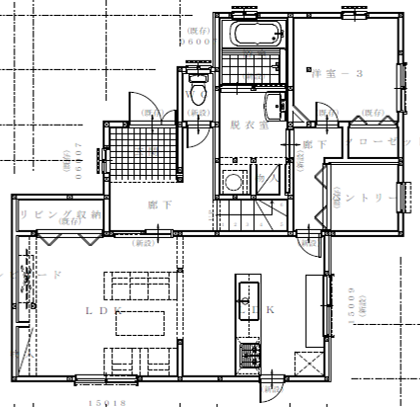
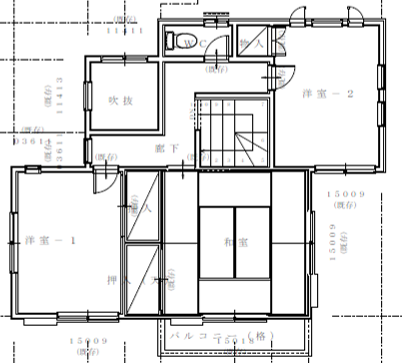
  • 間取り

    4LDK

  • 土地面積

    165.12㎡(49.94坪)

  • 建物面積

    111.78㎡(33.81坪)

  • 建築構造材質等

    木造ストレート葺2階建

  • 地勢

    平坦

  • 建ぺい率

    40%

  • 容積率

    80%

  • 築年月日

    平成1年11月

  • 設備

    オール電化 公営水道 公共下水 駐車場

  • 土地利権

    所有権

  • 地目

    宅地

  • 接道状況

    幅員10m

  • 接道方向等

    北側接面11m

  • 都市計画

    非線引き区域

  • 現況

    空家

  • 用途地域

    第1種低層住居専用地域

  • 引渡

    即時

  • 学校区

    桂本小学校・紀見北中学校区

  • 取引態様

    売主

  • 備考

    リベーション完成

この中古物件についての
お問い合わせはこちら

ATTRACTIVE USED PROPERTIES

その他おすすめの中古物件はこちら!